Lavori In Corso
Cor Urbis – Il cuore della città
A pochi passi dalla stazione ferroviaria di Cisterna di Latina e con affaccio diretto su Corso della Repubblica, Cor Urbis è un intervento residenziale di nuova costruzione pensato per chi cerca un investimento immobiliare solido o una residenza di qualità in posizione centrale.
Sono disponibili appartamenti, attici e locali commerciali progettati con criteri di efficienza, design e comfort, venduti direttamente dal costruttore, senza intermediari e senza costi di mediazione.
Un progetto pensato per garantire qualità costruttiva, efficienza energetica e valore nel tempo, con possibilità di personalizzazione degli spazi interni.
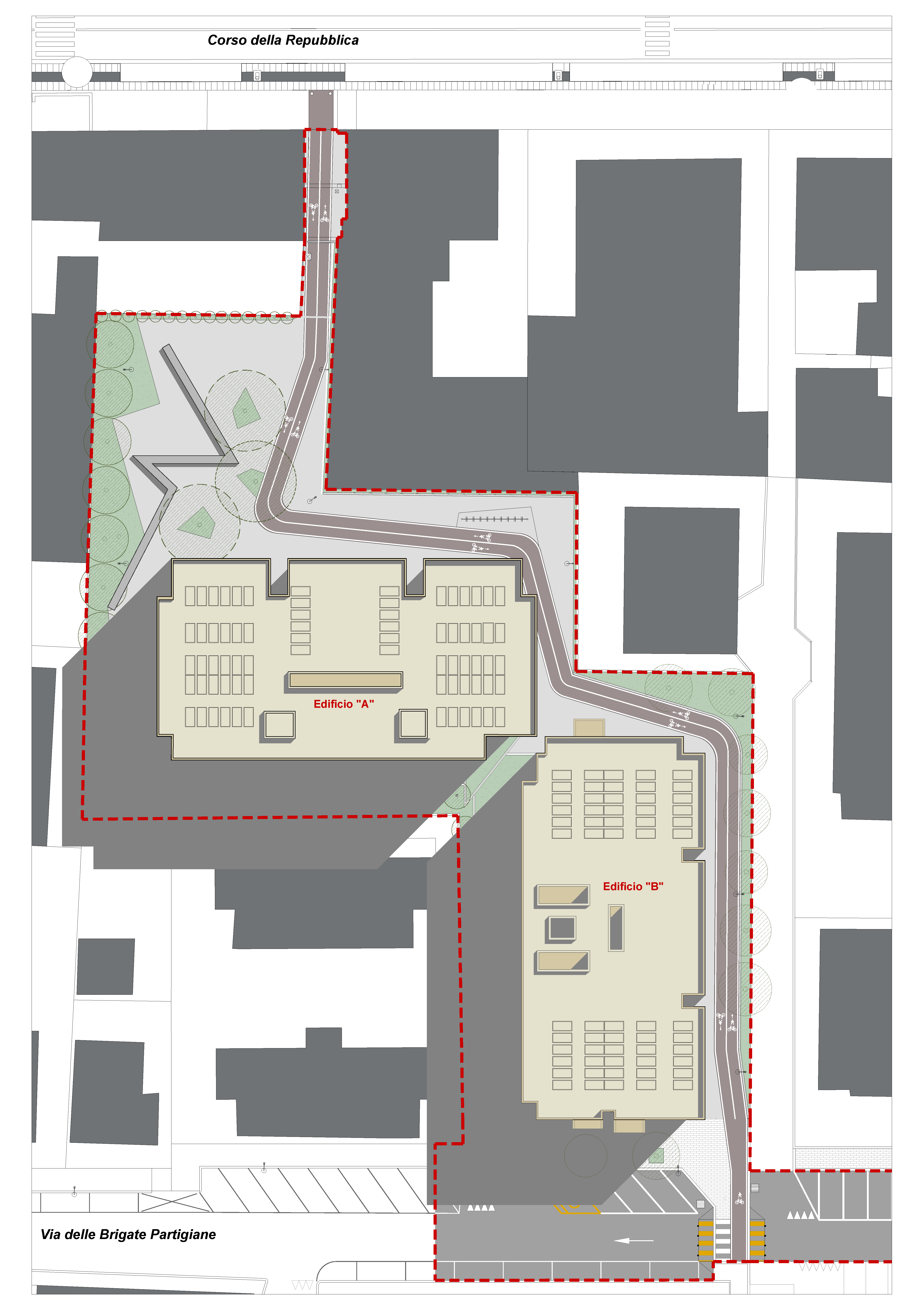
UNA POSIZIONE DAVVERO UNICA!
Uno dei veri punti di forza di Cor Urbis è la posizione.
Si tratta di una nuova costruzione nel centro di Cisterna di Latina con un collegamento diretto e comodo tra l’edificio, la stazione ferroviaria e Corso della Repubblica.
Dalla residenza si raggiunge la stazione in pochi metri, e anche tramite la pista ciclabile è possibile arrivare direttamente sul corso principale della città. Una condizione rara per un intervento di nuova costruzione in centro, che rende gli spostamenti più semplici e immediati in un contesto centralissimo.








